Chaty a chalupy > Česká republika > Jižní Čechy > chalupa č. 2C-453
Chalupa Novohradské hory - Mlýnský Vrch - Dobrá Voda Jižní Čechy
„Chalupa Novohradské hory - komfort v srdci přírody - jižní Čechy“
Chalupa Theodor
Chalupa kapacita: 11 osob
- 4 ložnice: 1x 3, 1x 2, 2x 2+1
- Koupelna: 2
- WC: 2
- Internet: ANO
- Domácí zvíře: NE - není povolené
- Majitel v objektu (recepce): NE
- Ubytovatel hovoří: česky, slovensky, anglicky
Majitel: Sihelníková Radka Ing.
+420 775 zobrazit kontakty na majitele
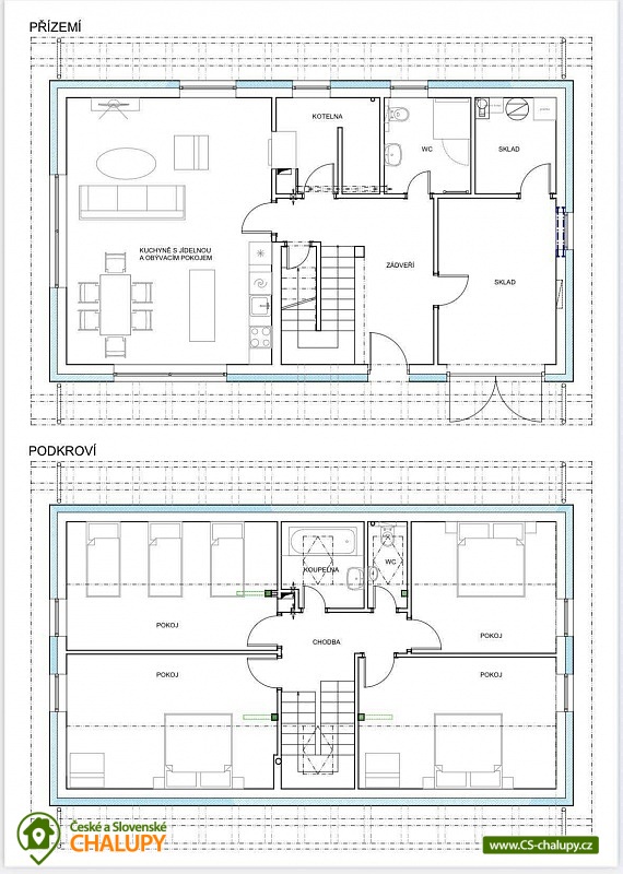
Chalupa v nádherné krajině Novohradských hor - stylově a komfortně zařízená chalupa ve Starých Hutích u Horní Stropnice. Chalupa představuje ověřený koncept pohodlného a stylového ubytování s kapacitou až 11 osob. Objekt je ideální pro rodinné pobyty nebo skupiny přátel, kteří hledají komfort, soukromí a kouzlo Novohradských hor. POPIS: V horním patře najdete čtyři prostorné ložnice, ideální pro pohodlné ubytování až 11 osob: Ložnice 1 - manželská postel velikosti king a přistýlka - rozkládací křeslo. Ložnice 2 - manželská postel velikosti king. Ložnice 3 - tři samostatná lůžka. Ložnice 4 - manželská postel velikosti king a přistýlka - gaučík. Všechny ložnice jsou zařízené kvalitním nábytkem, nechybí dostatek úložného prostoru ani dostatek denního světla. V patře je dále moderní koupelna s vanou a samostatná toaleta. Přízemí: V přízemí se nachází - vstupní zádveří, uzamykatelná garáž pro kola a lyže, prostorná obytná místnost, která spojuje plně vybavenou kuchyň, jídelnu a obývací část s pohodlným sezením a chytrou TV, další koupelna se sprchovým koutem a toaletou. Plně vybavená kuchyně s myčkou, troubou, lednicí a veškerým nádobím potěší každého, kdo rád vaří. V chalupě jsou vám tak k dispozici dvě stylové, moderní koupelny – jedna se sprchovým koutem, druhá s vanou. Součástí jsou dvě toalety, dostatek ručníků a základní toaletní potřeby. Vše je čisté, voňavé a připravené tak, abyste si pobyt užili v maximálním pohodlí. Vytápění - Moderní elektrokotel s podlahovým vytápěním v přízemí. Radiátory v ložnicích a koupelnách s možností individuální regulace teploty. Krb není k dispozici. V celé chalupě je Wi - Fi připojení. Venku je připravené posezení s grilem, udržovaný prostor pro odpočinek i hry a uzamykatelná garáž pro úschovu kol nebo lyží. Přímo u chalupy je dostatek parkovacích míst. Příjezdová cesta navazuje na místní komunikaci, je dobře sjízdná celoročně. Chalupa je ideálním výchozím bodem pro turistiku, cyklistiku i zimní sporty v krásném prostředí Novohradských hor. V okolí trasy pro pěší turistiku a cykloturistiku v létě a na běžky v zimě. Možnosti koupání v Mlýnském rybníku, Zlaté Ktiši a dalších přírodních koupalištích v okolí, vstup zdarma do plně vybaveného koupaliště s venkovním bazénem v Horní Stropnici. Lyžařské areály v dostupné vzdálenosti. Bohatá občanská vybavenost v blízkém okolí (obchody, restaurace, pošta, bankomat). Těšíme se na Vás u nás.























