Chaty a chalupy > Česká republika > Orlické hory a Východní Čechy > roubenka č. 8C-314
Roubenka Orlické hory - Anenský vrch - Rysy Orlické hory a Východní Čechy
„Roubenka Orlické hory - Bikepark, Skiareál a lanový park Říčky“
Roubenka - Říčky v Orlických horách
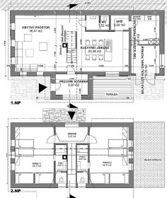
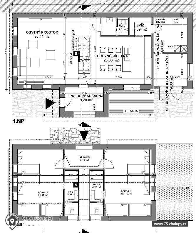
Roubenka kapacita: 12 osob
- 2 ložnice: 2x 6
- Koupelna: 2
- WC: 3
- Internet: ANO
- Domácí zvíře: NE - není povolené
- Majitel v objektu (recepce): NE
- Ubytovatel hovoří: česky, slovensky, anglicky
Majitel: Jasanská Jana
+420 602 zobrazit kontakty na majitele
Malebná a útulná Roubenka Orlické hory se nachází na okraji obce Říčky v Orlických horách nedaleko osady Rysy a měst Rokytnice v Orlických horách a Rychnov nad Kněžnou. Součástí obce je Ski centrum, bike park, lanové centrum nebo adventure golf. Roubenka nabízí ubytování pro až 12 osob ve dvou šestilůžkových ložnicích umístěných v horním patře. K dispozici je manželská postel a dvě jednolůžkové postele a z každé ložnice vede schodiště do půdních prostor, kde je umístěné další dvoulůžko. K zapůjčení je dětská postýlka. Součástí obou ložnic je koupelna se sprchovým koutem, WC a dětským vybavením. V přízemí roubenky lze společné chvíle trávit v krásném a prostorném obývacím pokoji s krbovými kamny, sedací soupravou, TV a dětským koutkem. Na pokoj navazuje plně vybavená kuchyň (varná deska, lednička, trouba, mikrovlnná trouba, kávovar Nespresso a myčka nádobí) s jídelním stolem. Využívat lze také výčepní zařízení. Dále je k dispozici komora/špajz, vstupní chodba s úložným prostorem, sušárna včetně pračky a sušičky a úschovna pro kola a lyže s elektrickým sušákem bot. Součástí přízemí je jedno samostatné WC včetně dětského vybavení. Vytápění je automatické, přitopit si lze v krbu. V celém objektu je k dispozici WIFI připojení na internet. U roubenky lze posedět na venkovní terase nebo u ohniště. Parkovat lze přímo u objektu. V okolí roubenky možnost turistiky, cykloturistiky, koupání, houbaření, rybaření, běžkování a lyžování. V blízkosti je také jízdárna a tenisové kurty. Mezi možnosti koupání patří např.: koupaliště Rokytnice v Orlických horách, koupaliště Kunvald, koupaliště Rychnov nad Kněžnou, bazén Rychnov nad Kněžnou, bazén Deštné v Orlických horách, koupaliště Dobré, aquapark Žamberk, atd. K dispozici jsou blízká lyžařská střediska: Říčky v O.h., Ski centrum Zdobnice, Rokytnice v O.h. - Farák, Orlické Záhoří - Černá Voda a další. K výletům v okolí láká Zámek Rokytnice v Orlických horách, Kolowratský zámek Rychnov nad Kněžnou, tvrz Hanička, Kunštátská kaple, Vodní nádrž Pastviny nebo zámky Opočno a Častolovice. Těšíme se na Vás u nás.






























