Chaty a chalupy > Slovensko > Nízké Tatry a střední Slovensko > chata č. 3S-110
Wellness chata Nízké Tatry - Mýto pod Ďumbierom Nízké Tatry a střední Slovensko
„Wellness chata Zinka - termální bazén, sauna, koupací káď a vířivka.“
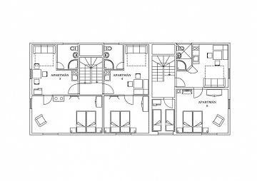
Chata kapacita: 28 osob
- 6 ložnic: 1x 4+2, 1x 2+4, 4x 2+2
- Koupelna: 6
- WC: 6
- Internet: ANO
- Domácí zvíře: ANO - je povolené
- Majitel v objektu (recepce): NE
- Ubytovatel hovoří: česky, slovensky, anglicky, polsky
Majitel: Jorčík Michal
+421 907 zobrazit kontakty na majitele
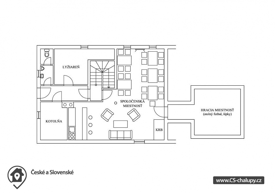
Wellness chata Zinka - wellness s bazénem, dětské hřiště, altán. Chata Zinka se nachází na okraji obce Mýto pod Ďumbierom u vleku na horách. Chata nabízí ubytování: 6 apartmánů pro až 28 osob (z toho je 14 přistýlek) v 7 ložnicích, (6 koupelen, 6x WC). Ubytování je k dispozici jen pro Vás. POPIS: Apartmán č.1 (max. 4 osoby) v přízemí: 1x Ložnice: 1x manželská postel, 1x Obývací prostor: 2x přistýlka, Jídelní posezení, Televizor, Gauč, Satelit, 1x Kuchyňský kout - Lednička, Elektrický vařič (dvojplotna) a 1x Koupelna s toaletou. Apartmán č.2 (max. 4 osoby) v přízemí: 1x Ložnice: 1x manželská postel, 1x Obývací prostor: 2x přistýlka, Jídelní posezení, Televizor, Gauč, Satelit, 1x Kuchyňský kout - Lednička, Elektrický vařič (dvojplotna) a 1x Koupelna s toaletou. Apartmán č.3 (max. 4 osoby) v podkroví: 1x Ložnice: 1x manželská postel, 1x Obývací pokoj: 2x přistýlka, 1x Kuchyňský kout - Lednička, Elektrický vařič (dvojplotna) a 1x Koupelna s toaletou. Apartmán č.4 (max. 5 osob) v podkroví: 1x Ložnice: 1x manželská postel, 1x přistýlka, 1x Obývací prostor: 2x přistýlka, 1x Kuchyňský kout - Lednička, Elektrický vařič (dvojplotna) a 1x Koupelna s toaletou. Apartmán č.5 (max. 5 osob) v přízemí s vlastním vchodem: 1x Ložnice: 1x manželská postel, 1x přistýlka, 1x Obývací pokoj: 2x přistýlka, Krb / Kamna, Televizor, Gauč, 1x Kuchyňský kout - Lednička, Rychlovarná konvice, Elektrický vařič (dvojplotna) a 1x Koupelna s toaletou. Apartmán č.6 (max. 6 osob) v patře, Vlastní vchod do budovy, Internet (WiFi), 1x Ložnice: 1x manželská postel, 1x Ložnice: 2x postel, 1x Kuchyň: 2x přistýlka, Lednička, Mikrovlnná trouba, Rychlovarná konvice, Elektrický vařič (dvojplotna) a 1x Koupelna s toaletou. Společné prostory: 1x Společenská místnost (přízemí) - Jídelní posezení, Společenské hry, CD přehrávač, Krb / Kamna, DVD přehrávač, Televizor, Gauč, Rádio. 1x Kuchyň: Lednička, Elektrická trouba, Kávovar, Elektrický sporák, Mikrovlnná trouba, Rychlovarná konvice, Televizor, Topinkovač, Toastovač, Myčka nádobí a 1x Wellness (Masáže, Vířivka, Sauna). Pobyt se psem je povolen za poplatek. Možno objednat také snídaně, obědy, večeře, polopenze a plné penze. K dispozici je venkovní bazén, termální bazén, sauna, koupací káď, masáže a vířivka. Venku se nachází ohniště, altánek, venkovní posezení, vnější krb, terasa, kotlík, zahradní houpačka a gril. Ubytování je vhodné pro rodiny s dětmi, k dispozici jsou dětské hřiště, dětský bazén, dětský koutek, hračky, dětská židle, dětská postýlka, prolézačka, skluzavka, pískoviště a dětská houpačka. Pozemek je oplocený. Parkování je možné pro 12 aut při objektu. Zalyžovat si můžete v lyžařském středisku Mýto Ski Centrum (600 m), nejbližší koupání je Termal Raj (45,2 km). V blízkosti si můžete prohlédnout jeskyni Bystrianská jeskyně (2,8 km) nebo Ľupčianský hrad (31,4 km).









































